首   頁  公司簡介  產品中心  質量體系  銷售網絡  聯系我們
 
  溫度儀表系列
  壓力儀表系列
  流量儀表系列
  校驗儀表系列
  顯示儀表系列
  變送器儀表系列
  電線電纜系列
 
  電磁流量計的工作原理
  氧化鋯氧傳感器的原理及應用
  有害氣體檢測報警儀選用原則
  我國計量用儀器儀表的發展和現狀
  國內儀器儀表行業將發生高科....
  西安交大研制出超高溫沖擊壓....
  采用半導體精密溫度傳感......
  智能溫度傳感器的發展趨勢
  簡述幾種氣體檢測傳感器.....
  利用傳感器技術制造智能服裝
  新型傳感器監控魚群數量
   
 
聯系方式
 電話(市場部):0517-86851868  
        0517-86882048
        0517-86881908
   (拓展部):0517-86882683
 傳真:0517-86851869
 節假日商務聯系電話:
 何經理:13655238295
 紀經理:18015196880
 郵編:211600
 網址:http://m.tutu08.com/
    http://www.sukeyb.com/
 E-mail:china-suke@163.com
     sukeyb@163.com
 地址:江蘇省金湖縣工業園區環城西
 路269號
 您現在的位置 > 首頁 > 行業新聞 > 一體化智能型楔形流量計工作原理
     

一體化智能型楔形流量計工作原理

    一體化智能型楔形流量計流量傳感器的檢測件是楔形孔板,它是一塊V形節流件,它的圓形頂角朝下,這樣有利于含懸浮顆粒(粉塵、泥沙及其它固體顆粒)流體和高粘度液體流過時在節流件上游側不會產生滯流,也不會在節流體上、下游側發生固體顆;蛘吵砦锏姆e存,從而確保楔形流量傳感器長期運行穩定性:±0.1FS%Y,這樣高的長期運行精度在流量測量領域是迄今少見的。楔形流量傳感器的結構如圖1所示。

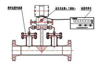
    一體化智能型楔形流量計的組成如圖2所示。它由一體化楔形流量計變送器和人工智能流量運算器兩部分組成。其中一體化楔形流量變送器由楔形流量傳感器、轉接板和差壓變送器構成。

    一體化智能型楔形流量計的工作原理是:當充滿管道的流體流經楔形孔板時,其下游側動壓增加,靜壓減小,由差壓變送器在楔形孔板下游側測出流體的差壓,并將差壓信號轉換為4~20mA.dc電流信號輸出,此信號經過人工智能流量運算器處理后,其示值為流量值。

本文由智能電磁流量計,江蘇省蘇科儀表有限公司為您提供,轉載請注明出處。

下篇文章:智能渦街流量計傳感器...... 上篇文章智能渦街流量計安裝注意點
 版權所有:江蘇省蘇科儀表有限公司       技術支持│易品網絡
溫度儀表事業部     壓力儀表事業部    流量儀表事業部    校驗儀表事業部    顯示儀表事業部    變送器儀表事業部    電線電纜事業部