SK-UQK-71液位顯示控制儀廣泛應用于煉油、化工、造紙、冶金、電力、食品、生活用水及污水處理等企業。
結構原理
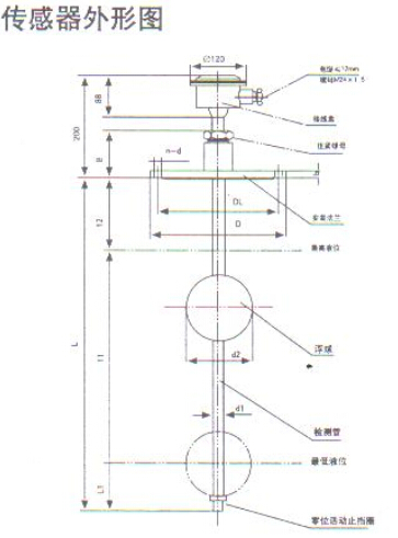
SK-UQK-71-2液位顯示控制儀的傳感器中裝有三只干簧管分別為下限、上限、越限報警。SK-UQK-71-4有五只干簧管,比SK-UQK-71-2多兩點液位顯示。裝有磁鋼的浮球隨液位上、下時使不同位置的干簧管動作,通過顯示表內相應繼電器的吸合將液位的正確位置指示出來。下限、上限顯示表有繼電器觸點輸出(相當于1 x 2開關)。上限越限時能發出聲、光報警信號而無繼電器觸點輸出。
SK-UQK-71-10、SK-UQK-71-50傳感器中裝有若干只干簧管。當裝有磁鋼的浮球隨液位上、下時,使不同位置的干簧管動作,從而使傳感器輸出的阻值發生變化,顯示表則將這變化的阻值轉換成面板—卜的發光二極管的亮熄來顯示被測的液位。顯示表上裝有控制點的設定鈕,叮任意將液位的控制范圍預先進行設定。當液位到達設定高度時,顯示表內繼電器吸合由繼電器的觸點通或斷去控制液面或報警。
液位顯示控制儀傳感器外形圖

液位顯示控制儀安裝形式

本文來源于網絡,如有侵權聯系刪除轉載請注明出處!