首   頁  公司簡介  產品中心  質量體系  銷售網絡  聯系我們
 
  溫度儀表系列
  壓力儀表系列
  流量儀表系列
  校驗儀表系列
  顯示儀表系列
  變送器儀表系列
  電線電纜系列
 
  電磁流量計的工作原理
  氧化鋯氧傳感器的原理及應用
  有害氣體檢測報警儀選用原則
  我國計量用儀器儀表的發展和現狀
  國內儀器儀表行業將發生高科....
  西安交大研制出超高溫沖擊壓....
  采用半導體精密溫度傳感......
  智能溫度傳感器的發展趨勢
  簡述幾種氣體檢測傳感器.....
  利用傳感器技術制造智能服裝
  新型傳感器監控魚群數量
   
 
聯系方式
 電話(市場部):0517-86851868  
        0517-86882048
        0517-86881908
   (拓展部):0517-86882683
 傳真:0517-86851869
 節假日商務聯系電話:
 何經理:13655238295
 紀經理:18015196880
 郵編:211600
 網址:http://m.tutu08.com/
    http://www.sukeyb.com/
 E-mail:china-suke@163.com
     sukeyb@163.com
 地址:江蘇省金湖縣工業園區環城西
 路269號
 您現在的位置 > 首頁 > 行業新聞 > 側裝式磁翻板液位計原理與產品特點
     

側裝式磁翻板液位計原理與產品特點

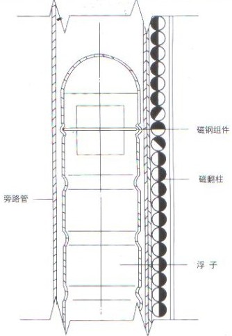
結構原理
    SK-FO側裝式磁翻板液位計根據浮力原理和磁性耦合作用而成。當被測容器中的液位升降時,液位計主導管中的浮子也隨之升降,浮子內的永久磁鋼通過磁耦合傳遞到現場指示器,驅動紅、白翻柱翻轉180°。當液位上升時,翻柱由白色轉為紅色,當液位下降時,翻柱由紅色轉為白色,指示器的紅、白界位處為容器內介質液位的實際高度,從而實現液位的指示。

產品特點
  • 適合容器內液體介質的液位,界位測量。除現場指示,還可配遠傳變送器、報警開關、檢測功能齊全。
  • 指示新穎,讀數直觀、醒目,觀察指示器的方向課根據客戶需要改變角度。
  • 測量范圍大,不受儲槽高度限制。
  • 指示機構與被測介質完全隔離,因而密封性好,可靠性高,使用安全。
  • 結構簡單,安全方便,維護費用低。
  • 耐腐蝕,無需電源,防爆。
下篇文章:電磁流量計基礎介紹 上篇文章:熱電偶清洗方法
 版權所有:江蘇省蘇科儀表有限公司       技術支持│易品網絡
溫度儀表事業部     壓力儀表事業部    流量儀表事業部    校驗儀表事業部    顯示儀表事業部    變送器儀表事業部    電線電纜事業部